欢迎访问启东利德润滑设备有限公司官网!
邮箱地址:
ld@qdldrh.com
网站首页
公司简介
新闻动态
产品展示
产品目录
联系我们
电子邮局
干油润滑部分
串行总线式智能润滑
单线式集中润滑系统介绍
双线式集中润滑系统介绍
电动润滑泵
电动润滑泵
HB-P电动润滑泵
DRB-P电动润滑泵
ZPU型电动润滑泵
双列式电动润滑脂泵
DB-N单线润滑泵
DDRB-N型多点润滑泵
CDQ型电动润滑泵装置
DRB-L系列电动润滑泵
DRB-J系列电动润滑泵
DDB系列多点干油泵
DB、DBZ型单线干油泵
DXZ系列电动干油站
手(脚)动润滑泵
手(脚)动润滑泵
SRB手动润滑泵
SRB-J/L手动润滑泵
SGZ-8型手动润滑泵
SGZ-4/8F型手动润滑泵
KMPS单线手动润滑泵
JRB-3型脚踏润滑泵
加油泵
加油泵
DJB-F200电动加油泵
DJB-V70型电动加油泵
DJB-H1.6型电动加油泵
DJB-V400型电动加油泵
KGP型电动加油泵
SJB-V25型手动加油泵
SJB-D60型手动加油泵
气动泵
气动泵
7786型气动润滑泵
AP-840B型气动补脂泵
双线分配器
双线分配器
SSPQ-P双线分配器
SDPQ-L双线分配器
VSKV-KR双线分配器
VSKH-KR双线分配器
SSPQ双线分配器
VSL-KR双线分配器
VSG-KR双线分配器
KS系列双线分配器
KW系列双线分配器
VS系列双线分配器
VW系列双线分配器
SGQ系列双线给油器
单线分配器
单线分配器
SSV单线递进式分配器
KJ单线递进式分配器
JPQS型递进式分配器
JPQ-K递进式分配器
JPQ递进式分配器
JPQ-L单进式分配器
FP、FPX单线分配器
PSQ型片式给油器
压力操纵、控制、换向阀及其附件
压力操纵、控制、换向阀
YCK-P5型压差开关
YKQ型压力指示器
YKQ-SB型终端式压力控制器
YKF-L型压力控制阀
YZF-L4型压力操纵阀
YZF-J4型压力操纵阀
24EJF-P型二位四通换向阀
EM型电动换向阀
DR4-5型液压自动换向阀
ZYP型二位四通液压换向阀
YHF型液压换向阀
DF型电磁换向阀
GGQ-P系列干油过滤器
GPF-8型干油喷射控制阀
GJQ型干油压力表减震器
GPZ-135型干油喷射阀
PF-200型干油喷射阀
AF-K10型安全阀
分配器罩
支架
稀油润滑部分
稀油集中润滑系统设计介绍
稀油润滑装置及稀油站
稀油润滑装置及稀油站
XHZ型稀油润滑装置
XYHZ型稀油润滑装置
XYZ-G型稀油站
XYZ-GZ型整体式稀油站
高(低)压稀油站
高(低)压稀油站
GXYZ型A系列
GXYZ型B系列
GDR型双高压系列
稀油润滑元件
稀油润滑元件
WBZ型卧式齿轮油泵装置
LBZ型立式齿轮泵装置
SPL、DPL型网片式油滤器
SLQ型双筒网式过滤器
SWCQ型双筒网式磁芯过滤器
CLQ型磁过滤器
Y型系列过滤器
列管式冷却器
LQ系列列管式冷却器
LC系列列管式冷却器
SGLL型双联油冷却器
FL型空气冷却器
KL型空气冷却器
YZQ型油流指示器
YXQ型油流发讯器
GZQ型给油指示器
AF型安全阀
DXF型单向阀
管件部分
管件部分
焊接式管接头
焊接式端直通圆锥管螺纹管接头
卡套式端直通管接头
卡套式直通管接头
卡套式端对接直通管接头
卡套式对接直通管接头
卡套式锥螺纹直通管接头
卡套式锥螺纹对接直通管接头
锥密封焊接式铰接管接头
锥密封焊接式管接头
扩口式端直通管接头
扩口式锥螺纹直通管接头
锥密封焊接式压力表管接头
铜管用管接头
钢管用螺纹连接接头
钢管用插入焊接式接头
焊接式接头
带阀接头
旋转接头
活接头
双向接头体
锥密封钢丝
其它管接件
高压胶管总成
A、B、C型扣压式胶管接头
A型可拆式胶管接头
管夹和管托架
塑料管夹
HZJ系列管夹
ZGJ系列座式管夹
油气润滑部分
油气润滑系统设计介绍
油气润滑系统的形式
油气润滑系统的形式
单线二分式油气润滑系统
单线混分式油气润滑系统
单线—多区式油气润滑系统
单线卸压式油气润滑系统
双线式油气润滑系统
双线—递进式油气润滑系统
油气润滑系统产品
油气润滑系统产品
单线油—气供应站
ZRTYQZ-0.28/*型油气供应站
ZRWYQZ-*/*-B型油气供应站
双线油—气供应站
单线卸压式油—气供应站
SMX*-YQ型油—气分配混合器
QHQ-J型油—气分配混合器
ZRFLG*型油气分流器
ZRFLK*型油气分流器
YQWXZ-G型油气卫星站
AVE型油气分配混合器
DMM*-YQ型双线油气分配混合器
电气控制部分
电气控制部分
GDK02型电气控制箱
GDK03型电气控制箱
DEA-2L型电气控制箱
DEA-2E型电气控制箱
R1902型电气控制箱
R1904型电气控制箱
GXYZ型B系列高(低)压稀油站
一、使用条件
与GXYZ型A系列基本一致,但工作介质粘度范围为N22~N460(相当ISO VG22~460);另外B 系列的除高压和低压的供油压力不变分别为31.5MPa和0.4MPa外,其高压和低压的流量均有较大增加,详见下面技术性能表(规格最大的高压流量为40L/min,低压流量为315L/min)。
本装置由油站、仪表盘、电控柜(可用PLC 控制)成套组成。
本产品的性能参数及尺寸应符合表和图中的规定。
二、型号标注方法
如采用B 系列,高压流量为20L/min;高压压力为31.5MPa,低压供油压力为0.4MPa;而低压供油量为100L/min的高(低)压稀油站,采用继电器、接触器控制的则按如下方法标注:GXYZ-B20/100
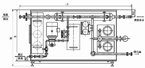
三、结构特点
本油站为整体式,由油箱、两台低压油泵、一台高压油泵、二台双筒网片式过滤器、回油磁网过滤装置、列管式油冷却器、各种控制阀门、管道以及电接点压力表、铂热电阻等组成。
工作原理基本上也和A系列相同;但B系列的低压油经过过滤和冷却后外供时,一部分低压油通过旁路再经过一个双筒过滤器后才进入高压泵的吸油口,以提高高压油的清洁度等级;但应注意当低压供油实际压力较小时(例如小于0.2MPa时),由于后一过滤器同样也有压差损失(也随时间逐步增大),为保证高压油泵顺利吸入,吸入口应始终保证正压(当后过滤器切换前压差达最大时也必须满足这一要求);除 流量和A系列有很大不同外,最主要特点(结构特征)为高压泵吸口前有另一台过滤器。
其他工作原理和操作控制可参见A系列所述。
GXYZ 型B 系列高(低)压稀油站技术性能
参数
型号
GXYZ-B20/100
GXYZ-B20/125
GXYZ-B20/160
GXYZ-B30/200
GXYZ-B30/250
GXYZ-B40/135
低
压
系
统
流量L/min
100
125
160
200
250
315
供油压力MPa
≤0.4
供油温度℃
40±3
电动机
型号
Y100L2-4
Y112M-4
Y132S-4
Y132M-4
功率KW
4
4
5.5
7.5
转速r/min
1450
油箱容积m3
1.6
2.0
2.2
2.8
3.3
4.2
高压系统
流量L/min
20
30
40
供油压力MPa
31.5
电动机
型号
Y160L-6
Y160L-4
Y180M-5
功率Kw
11
15
18.5
转速r/min
950
1450
过滤精度m2
0.08~0.12(低压出口)
过滤面积m2
11
20
28
冷却面积m2
9
11.25
16
20
25
30
电加热功率Kw
18
24
30
外形尺寸mm
2300 x 1540 x 1800
2750 x 1700 x 1900
3350 x 1850 x 1950
备注
实际油粘度高于320cst时,低压泵功率应提高一级
四、外形尺寸
GXYZ 型B 系列外形尺寸
型号
H
H1
H2
H3
H4
L
L1
B
B1
DN1
DN2
DN3
DN4
GXYZ-B20/100
1110
1800
940
160
400
1700
2300
1280
1540
20
320
100
G11/2
GXYZ-B20/125
1160
1800
990
160
400
1800
2300
1380
1540
20
40
100
G2
GXYZ-B20/160
1160
1900
990
160
400
1900
2750
1480
1700
20
40
125
G2
GXYZ-B30/200
1200
1900
1030
180
400
2200
2750
1530
1700
20
50
150
G2
GXYZ-B30/250
1200
1950
1030
180
450
2650
3350
1580
1850
20
65
150
G2
GXYZ-B40/315
1260
1950
1090
180
450
2800
3350
1680
1850
20
65
175
G2
五、原理图
六、仪表盘
仿A系列(图2-1-4),二个过滤器的差压发讯器尽量就地装于过滤器上。
七、电控柜
按A系列电控柜。(图2-1-3)