欢迎访问启东利德润滑设备有限公司官网!
邮箱地址:ld@qdldrh.com
  •  
     
     干油润滑部分
    串行总线式智能润滑
    单线式集中润滑系统介绍
    双线式集中润滑系统介绍
    电动润滑泵
     
    手(脚)动润滑泵
     
    加油泵
     
    气动泵
     
    双线分配器
     
    单线分配器
     
    压力操纵、控制、换向阀及其附件
     
     稀油润滑部分
    稀油集中润滑系统设计介绍
    稀油润滑装置及稀油站
     
    高(低)压稀油站
     
    稀油润滑元件
     
     管件部分
     
     油气润滑部分
    油气润滑系统设计介绍
    油气润滑系统的形式
     
    油气润滑系统产品
     
     电气控制部分
     
 
ZPU型电动润滑泵(40MPa)
一、使用条件
ZPU型电动润滑泵适用于润滑频率高,配管长度大,润滑点密集,公称压力为40MPa的单、双线干油集中润滑系统中,作为供给润滑剂的输送装置。还可配备移动小车、高压胶管、给脂油枪和电缆组成移动式电动润滑泵装置,用于润滑频率低,润滑点少、给油量大且不便于采用集中润滑的单机设备上进行移动给油润滑。
该泵是一种由减速电机驱动油泵装置,排出润滑剂的单出口电动润滑泵。有三种排量规格,可根据不同需要方便地组成投资最低的集中润滑系统;由它组成的干油集中润滑具有输送距离远,供油管径小的特点。

二、技术参数

型 号
公称压力MPa
额定给油量mL/min
贮油器容积L
减速电机
重 量kg
功率kW
电压
ZPU-08G
40
133
40
0.55
~380
76
ZPU-14G
233
60
0.75
84
ZPU-24G
400
100
1.5
92

使用介质为锥入度不低于265(25℃,150g)1/10mm 的润滑脂(NLGI0#-2#)和粘度等级大于N68 的润滑油。

   
三、型号说明
 
      
   
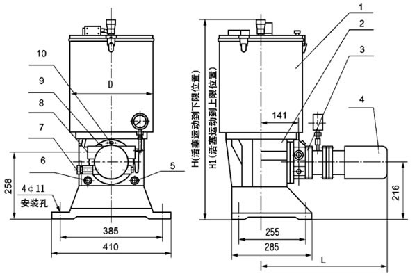
四、外形尺寸

 
1、贮油筒;2、泵座;3、带连结法兰的柱塞泵装置;4、减速电机5、加油口G3/4;
6、回油口G3/4;7、调压安全阀;8、出油口G3/4;9、过滤器;10、单向阀
 
规格
40L
60L
100L
0.55kW 60rpm
0.75kW 100rpm
1.5kW 180rpm
D
Φ325
Φ325
Φ500
 
H
822
1077
1027
H1
1112
1527
1387
L
510
530
575
 

五、使用说明
1、应安装在环境温度合适,灰尘少,便于调整、检验、维修、拆洗及补脂方便的地方。
2、应尽可能布置在系统的中心位置,以缩短系统配管长度,保持最低压降,使泵能产生足以克服润滑点背压的压力。
3、首次使用前应先加入一定量的润滑油,让泵运转几分钟后再从补脂口以封闭方式用电动加油泵加入润滑脂。
4、电机减速机初用后三个月必须从排气塞孔处补充适量的3# 二硫化铝润滑剂,以后每隔四个月补充一次。
5、该泵为室内安装型,在室外或环境恶劣的场合使用时,必须采取防护措施。

六、订货说明
1、订购带小车的电动润滑泵移动装置时,必须在合同中注明所需胶管长度及电缆长度。
2、电动润滑泵为短时间间隔工作制,用户如需长时间连续工作请在合同中注明。